Luxe – uniek – super uitzicht – zongericht terras – modern en exclusief ! Dat is het uitzonderlijk mooi en groot penthouse gelegen KONINGINNELAAN 76 bus 1 te MAASMECHELEN-EISDEN met een totale oppervlakte van 244 m² en 220 m² bewoonbare oppervlakte (bruto), 2 – 4 slaapkamers al naargelang de indeling, 2 badkamers, 3 toiletten en een hyper geïnstalleerde keuken met groot keukeneiland en zicht op het terras (meer dan 100 m² ) en de Koninginnelaan of met zicht op het achterliggende groen. Hier geniet je elke dag van de rust, de luxe en het comfort, van de sfeer, de hoogwaardige afwerking en de grote ruimtes, van de mooie lichtinval en de uitzichten.
Het penthouse ligt boven ‘MEERTENS ELEKTRO’ en is toegankelijk hetzij via een ruime trap, hetzij vanuit de winkel voor kopers van het geheel. Het gebouw bestaande uit 1 penthouse en 1 winkel dateert van 1999 en werd volledig EN HOOGWAARDIG GERENOVEERD IN 2014-2015.
Meer details vindt u op onderstaande linken:
Video: https://youtu.be/G9xyrsF_bi0
3D-TOUR: https://bit.ly/4kgXySv
Website: https://www.vdb.immo/nl/aanbod/te-koop?view=detail&id=1392
LIGGING:
Het ligt te midden van het handelscentrum te Eisden op wandelafstand van shoppingcentrum M2 en op +- 2 minuten van het "Outlet Center Maasmechelen Village" (met meer dan 200 merkenwinkels), Decathlon, Euroscoop en Connecterra met zijn toegangspoort tot het ‘Nationaal Park Hoge Kempen’.
Op fietsafstand ben je zo in het Energetic Wellness Elysa te Dilsen en alle sportaccommodaties en het CC van Eisden.
De E314 autostrade met uitvalswegen naar Maastricht - Keulen, Genk – Antwerpen - Brussel is gelegen op enkele minuten.
TROEVEN – EXTRA VOORDELEN:
*toplocatie waar alles bereikbaar is in de onmiddellijke omgeving;
*een licht en luchtig penthouse;
*voorzien van een alarminstallatie;
*hoogwaardige materialen en afwerking;
*ingebouwde kasten – dressings;
*3 toiletten;
*al naargelang de behoefte 2 extra slaapkamers mogelijk;
*zeer onderhoudsvriendelijk;
*zongericht terras van meer dan 100 m²;
*screens als zonnewering;
*grote luifel;
*EPC LABEL C: geen renovatieverplichting;
*condenserende gasketel en radiatoren met thermostatische kranen en of hete lucht
verwarming;
*geen gemeenschappelijke kosten;
*K.I. is 1424 euro;
*parkeermogelijkheid op het achterliggend terrein;
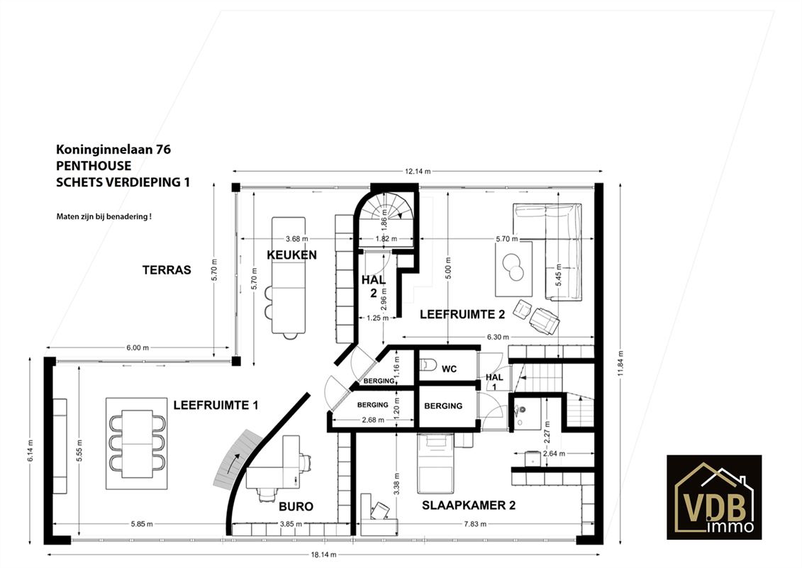
INDELING:
- Eerste verdieping boven het winkelpand: +- 180 m² bruto met 2 leefruimtes – open keuken met keukeneiland – 2 toiletten – bureau – bergingen – trappenhal en slaapkamer met dressing en badkamer;
- Tweede verdieping: +- 64 m² bruto met de master bedroom – dressing - badkamer – toilet en wasruimte;
Interesse: Bel vrijblijvend naar Marie-Paule op GSM 0476 959 958.
Wij kunnen geen garantie geven over de juistheid van de gegevens en afmetingen.
3D bezoek
